Dự án Khu công nghiệp Mỹ Thanh là một trong những khu công nghiệp mới được quy hoạch tại tỉnh Sóc Trăng (nay thuộc TP Cần Thơ), nhằm thúc đẩy phát triển kinh tế – xã hội địa phương, tập trung vào các ngành công nghiệp sạch, công nghệ cao và hỗ trợ kinh tế biển.
Dự án được phê duyệt đồ án quy hoạch phân khu xây dựng tỷ lệ 1/2.000 theo Quyết định số 3330/QĐ-UBND ngày 21/12/2023 của Ủy ban Nhân dân tỉnh Sóc Trăng. Với vị trí chiến lược tại vùng ven biển, dự án hướng tới việc thu hút đầu tư trong các lĩnh vực năng lượng tái tạo, logistics, chế biến nông thủy sản và cơ khí, góp phần vào mục tiêu phát triển bền vững của tỉnh.
Hiện nay, dự án đang trong giai đoạn hoàn thiện hồ sơ pháp lý, tìm kiếm nhà đầu tư hạ tầng và thu hút các dự án thứ cấp, với một số nhà đầu tư tiềm năng như Liên danh Công ty TNHH Phát triển công nghệ Mặt trời Việt và Công ty TNHH Đầu tư và Kinh doanh Điện năng Việt Nam, Công ty cổ phần Cung ứng và Dịch vụ đa ngành Sao Bắc Đẩu, và Công ty cổ phần Đầu tư Đinh Quốc Ninh Bình. Dự án không chỉ khai thác lợi thế địa lý mà còn hưởng các chính sách ưu đãi đầu tư từ chính phủ, như miễn giảm thuế thu nhập doanh nghiệp (miễn 2 năm và giảm 50% trong 4 năm tiếp theo theo Nghị định 91/2014/NĐ-CP).
Nội Dung Đề Xuất
- Khu nhà ở Hoàng Cát Center (huyện Bàu Bàng, tỉnh Bình Dương)
- Dự án đường bộ ven biển từ Hòn Đất đi Kiên Lương
- Khu công nghiệp – Đô thị – Dịch vụ VSIP Bình Phước
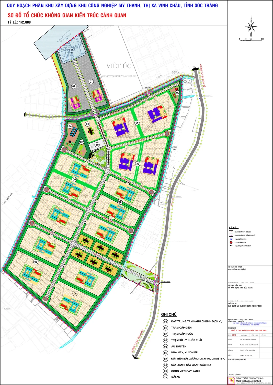
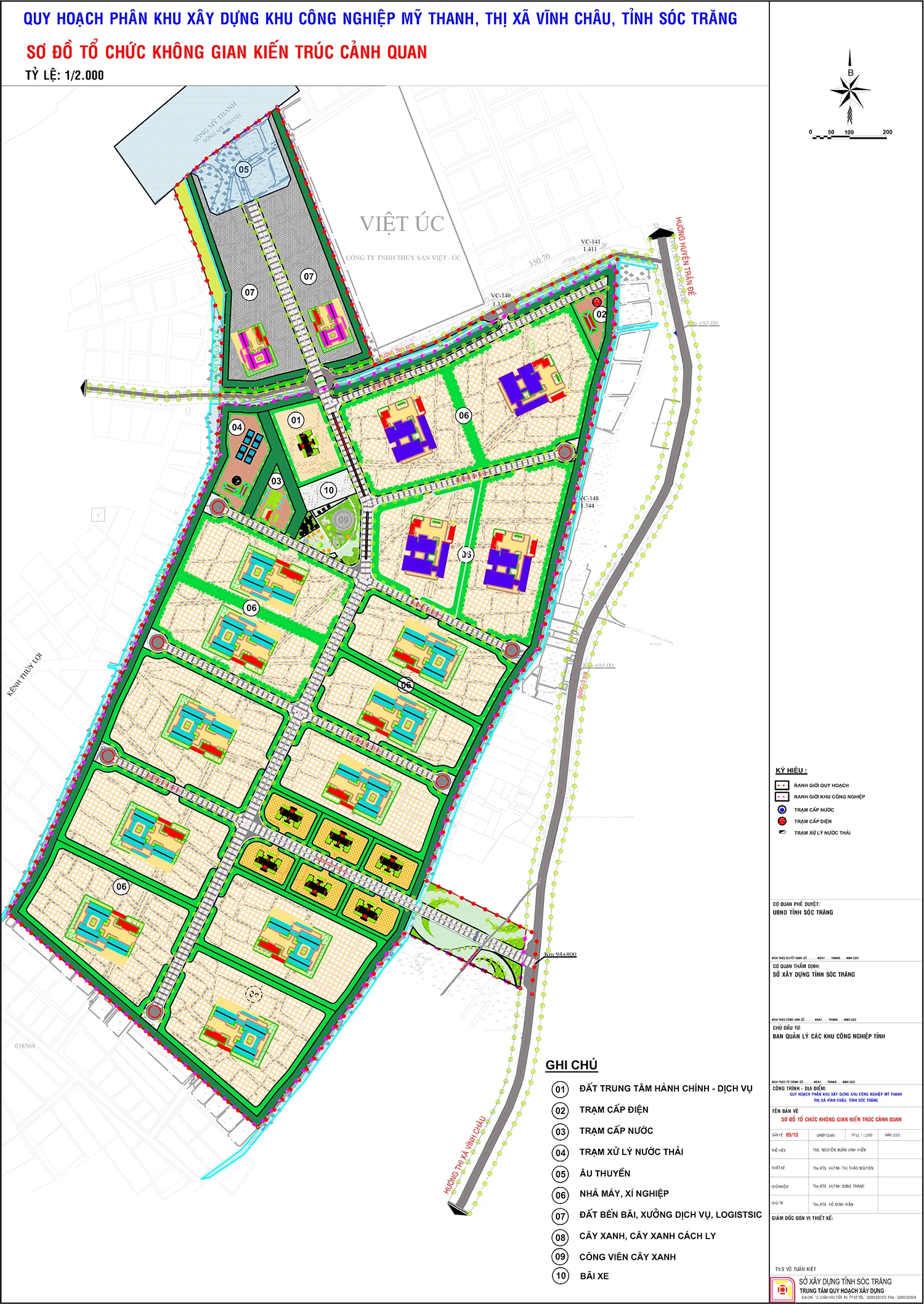
Khu công nghiệp Mỹ Thanh được định vị là khu công nghiệp tập trung đa ngành, ưu tiên các dự án thân thiện với môi trường. Hiện trạng đất chủ yếu là đất nuôi trồng thủy sản (nguồn gốc từ đất nông trường), và dự án đang được đẩy mạnh triển khai để phù hợp với Quy hoạch tỉnh Sóc Trăng thời kỳ 2021-2030, tầm nhìn đến năm 2050.
Thông tin dự án Khu công nghiệp Mỹ Thanh
| Thông tin | Chi tiết |
|---|---|
| Tên dự án | Khu công nghiệp Mỹ Thanh |
| Vị trí địa lý | Ấp Huỳnh Kỳ, xã Vĩnh Hải, thị xã Vĩnh Châu, tỉnh Sóc Trăng (nay thuộc TP Cần Thơ) Ranh giới: Phía Bắc giáp đường tỉnh 937B và sông Mỹ Thanh; Phía Tây giáp kênh thủy lợi; Phía Nam giáp đất nuôi trồng thủy sản; Phía Đông giáp khu dân cư và Quốc lộ 91B (Đường Nam Sông Hậu). |
| Quy mô diện tích | 221,61 ha (bao gồm 217 ha đất khu công nghiệp, trong đó 150,35 ha dành cho xây dựng nhà máy và kho bãi logistics; 4,61 ha đất hạ tầng đối ngoại kết nối giao thông). |
| Mật độ xây dựng | 70% |
| Tính chất và mục tiêu | Khu công nghiệp tập trung đa ngành, ưu tiên thu hút đầu tư vào năng lượng sạch, năng lượng tái tạo, năng lượng thông minh, điện khí, logistics; chế biến nông sản, thủy sản, sản xuất thức ăn chăn nuôi; cơ khí, sửa chữa máy móc, thiết bị khai thác kinh tế biển; sản xuất vật liệu xây dựng, đồ gỗ, nội thất, bao bì. |
| Chủ đầu tư hiện tại | Chưa có nhà đầu tư chính thức (ký hiệu MYTHANH-IP-ST); đang tìm kiếm và có 3 nhà đầu tư quan tâm đề xuất. |
| Vốn đầu tư | Chưa công bố chi tiết (dự án đang trong giai đoạn kêu gọi đầu tư hạ tầng). |
| Thời gian triển khai | Đang hoàn thiện hồ sơ pháp lý và lựa chọn nhà đầu tư; phê duyệt quy hoạch năm 2023, dự kiến khởi động xây dựng hạ tầng trong thời gian tới (chưa có mốc cụ thể). |
| Hạ tầng kỹ thuật | – Giao thông: Kết nối Quốc lộ 91B, sông Mỹ Thanh, gần Cảng Vĩnh Hải (dự kiến). – Điện: Từ lưới quốc gia 22kV. – Nước: 8.600 m³/ngày-đêm. – Nước thải: Xử lý tập trung 5.200 m³/ngày-đêm. – Khác: Thoát nước mưa độc lập, PCCC, thông tin liên lạc, cây xanh. |
| Ưu đãi đầu tư | Miễn thuế thu nhập doanh nghiệp 2 năm, giảm 50% trong 4 năm tiếp theo; miễn VAT và thuế xuất nhập khẩu cho doanh nghiệp chế xuất. |
| Kết nối vùng | Cách TP Sóc Trăng 39 km; TX Vĩnh Châu 22 km; Sân bay Quốc tế Cần Thơ 103 km; TP Cần Thơ 93 km; Kết nối hành lang kinh tế Đông-Tây và Bắc-Nam. |
| Hiện trạng | Đất nuôi trồng thủy sản; đang nghiên cứu đầu tư, có đề xuất dự án điện khí 9.600 MW từ Millenium Energy (Mỹ). |
Lợi thế và tiềm năng của dự án dựa trên vị trí
Vị trí của Khu công nghiệp Mỹ Thanh tại xã Vĩnh Hải, thị xã Vĩnh Châu – một khu vực ven biển phía Đông tỉnh Sóc Trăng – mang lại nhiều lợi thế chiến lược, giúp dự án trở thành điểm sáng thu hút đầu tư.
Thị xã Vĩnh Châu nằm dọc theo Quốc lộ 91B (Đường Nam Sông Hậu) và sông Mỹ Thanh, chỉ cách cửa biển Trần Đề khoảng 20-30 km, tạo điều kiện thuận lợi cho giao thông thủy bộ kết hợp.
Cụ thể, phía Bắc giáp sông Mỹ Thanh giúp dễ dàng kết nối với hệ thống sông ngòi Đồng bằng sông Cửu Long, hỗ trợ vận chuyển hàng hóa bằng đường thủy đến các cảng lớn như Cảng Vĩnh Hải (đang quy hoạch) và Cảng Trần Đề – một trong những cảng biển nước sâu quan trọng của khu vực, dự kiến trở thành trung tâm logistics quốc tế.
Đồng thời, Quốc lộ 91B kết nối trực tiếp với các tuyến cao tốc Bắc-Nam và hành lang kinh tế Đông-Tây, giảm thời gian di chuyển đến TP Sóc Trăng (39 km), TP Cần Thơ (93 km) và Sân bay Quốc tế Cần Thơ (103 km), từ đó liên kết với các trung tâm kinh tế lớn như TP.HCM và các tỉnh lân cận (Trà Vinh, Bạc Liêu, Hậu Giang).
Lợi thế nổi bật nhất là vị trí ven biển với bờ biển dài 72 km của Sóc Trăng, mang lại tiềm năng lớn cho phát triển năng lượng tái tạo. Khu vực Vĩnh Châu có tốc độ gió trung bình 6-6,4 m/s, số giờ nắng khoảng 2.500 giờ/năm và bức xạ mặt trời 4,8-5 kWh/m²/ngày, lý tưởng cho các dự án điện gió, điện mặt trời và năng lượng sinh khối.
Điều này phù hợp với định hướng của dự án, như thu hút đầu tư điện khí và năng lượng thông minh, với ví dụ điển hình là đề xuất dự án phức hợp điện khí 9.600 MW từ Millenium Energy (Mỹ). Hơn nữa, vị trí gần nguồn nguyên liệu dồi dào từ nông nghiệp và thủy sản địa phương (tôm sú, hành tím, cá tra) tạo lợi thế cho các ngành chế biến, logistics và sản xuất thức ăn chăn nuôi, giúp giảm chi phí vận chuyển và tăng giá trị chuỗi cung ứng.
Khu vực này cũng nằm trong hành lang kinh tế Nam Sông Hậu, gần các dự án hạ tầng quốc gia như Cầu Đại Ngãi (bắc qua sông Hậu) và cao tốc Châu Đốc – Cần Thơ – Sóc Trăng, dự kiến hoàn thành sẽ nâng cao khả năng kết nối, giảm thời gian logistics xuống còn 1-2 giờ đến các tỉnh lân cận.
Về tiềm năng, dự án có khả năng trở thành động lực kinh tế biển của Sóc Trăng, tận dụng lợi thế gần Cảng Trần Đề để phát triển logistics và dịch vụ hậu cần, thu hút đầu tư nước ngoài từ các quốc gia như Mỹ, Nhật Bản và châu Âu – những nơi ưu tiên công nghệ sạch.
Với dân số trẻ và lực lượng lao động dồi dào (lương tham khảo 100-300 USD/tháng), khu vực có thể hỗ trợ các ngành cơ khí, chế tạo thiết bị khai thác biển và sản xuất vật liệu xây dựng. Tiềm năng mở rộng đô thị – dịch vụ cũng cao, khi kết hợp với quy hoạch tỉnh, có thể tạo cụm công nghiệp – đô thị tích hợp, góp phần tăng GDP tỉnh lên mức 5-6%/năm theo mục tiêu 2030.
Tuy nhiên, cần chú trọng bảo vệ môi trường ven biển để đảm bảo phát triển bền vững, tránh rủi ro từ biến đổi khí hậu như xâm nhập mặn. Tổng thể, với vị trí “cửa ngõ” ven biển, Khu công nghiệp Mỹ Thanh không chỉ mang lại lợi ích kinh tế địa phương mà còn góp phần vào chiến lược phát triển vùng Đồng bằng sông Cửu Long.














